Carport fotovoltaico a Polonghera (CN) | Impianto 7,65 kW con accumulo

Home » News » Realizzazioni » Carport fotovoltaico a Polonghera (CN) | Impianto 7,65 kW con accumulo

Soluzione su misura per energia e protezione auto

Quando il tetto non è la soluzione ideale

Ogni impianto fotovoltaico nasce da un’esigenza concreta. Nel caso di questa installazione a Polonghera, in provincia di Cuneo, il cliente si trovava davanti a una criticità: la particolare conformazione del tetto rendeva complessa l’installazione di un impianto tradizionale.

Durante il sopralluogo, il nostro team ha individuato un’opportunità spesso sottovalutata: lo spazio disponibile nel cortile.

Da qui nasce la proposta: realizzare un carport fotovoltaico a due posti auto, capace non solo di produrre energia, ma anche di migliorare la funzionalità degli spazi esterni.

Cos’è un carport fotovoltaico e perché conviene

Un carport – detto anche pensilina fotovoltaica – è una struttura coperta, generalmente in acciaio o alluminio, progettata per ospitare pannelli solari e allo stesso tempo proteggere veicoli dagli agenti atmosferici.

I principali vantaggi per uso residenziale

  • Produzione di energia senza intervenire sul tetto
  • Protezione per una o più auto
  • Ottimizzazione degli spazi esterni
  • Maggiore autonomia energetica
  • Valorizzazione dell’immobile

È una soluzione particolarmente indicata quando:

  • il tetto non è idoneo
  • si vogliono evitare lavori invasivi
  • si dispone di spazio in cortile o giardino

👉 Vuoi realizzare un carport fotovoltaico?

Contattaci per una consulenza: analizziamo il tuo spazio e progettiamo la soluzione più adatta alle tue esigenze.

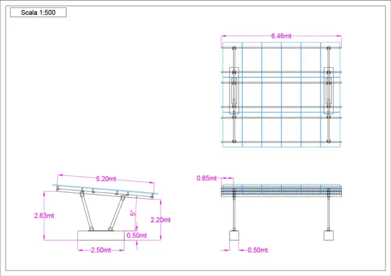
Il progetto: carport fotovoltaico da 7,65 kW

Una struttura pensata su misura

L’impianto realizzato a Polonghera è un carport a due posti auto, progettato per integrarsi con l’abitazione e rispondere a due esigenze precise:

  1. produrre energia rinnovabile
  2. proteggere entrambe le vetture del cliente

La struttura in acciaio è stata sviluppata in collaborazione con una carpenteria locale, valorizzando il legame con il territorio e garantendo solidità e qualità costruttiva.

Dati tecnici dell’impianto

  • Potenza impianto: 7,65 kW
  • Accumulo: 10 kWh
  • Tipologia: carport fotovoltaico residenziale
  • Struttura: acciaio su misura
  • Installazione: luglio 2025
  • Tempo di realizzazione: 2 giorni

Componenti del sistema fotovoltaico

Moduli ad alta efficienza

L’impianto è composto da moduli SUNPOWER MAXEON 6

  • Tecnologia monocristallina a 66 celle
  • Efficienza fino al 22%
  • Elevata resa anche in condizioni non ottimali

 

Microinverter e gestione energetica

Ogni pannello è dotato di microinverter ENPHASE, che consentono una produzione indipendente per singolo modulo.

Secondo la documentazione tecnica disponibile:

  • ogni pannello lavora in modo autonomo
  • il sistema massimizza la produzione anche in presenza di ombreggiamenti
  • si elimina la presenza di alta tensione DC

Questo approccio migliora l’efficienza complessiva e l’affidabilità dell’impianto.

Quadro elettrico e sicurezza

Il sistema è completato da:

  • Quadro generale AC con grado di protezione IP65
  • Scaricatori di sovratensione
  • Interruttore differenziale

Energia sempre disponibile con sistema di accumulo

Il carport è stato integrato con due batterie di accumulo Enphase Energy, per una capacità totale di 10 kWh, che permettono di sfruttare al massimo l’energia prodotta.

Secondo la documentazione tecnica disponibile, i sistemi con accumulo consentono di:

  • immagazzinare l’energia prodotta in eccesso
  • aumentare l’autoconsumo
  • ridurre la dipendenza dalla rete elettrica
Questo si traduce in un utilizzo più efficiente dell’impianto, soprattutto nelle ore serali o nei momenti di maggiore consumo.

Installazione rapida ed efficiente

Uno degli aspetti distintivi di questo intervento è stata la rapidità di esecuzione.

  • Giorno 1: montaggio struttura in acciaio
  • Giorno 2: installazione moduli e sistema di accumulo

Un risultato possibile grazie alla pianificazione precisa e alla sinergia tra progettazione e installazione.

Garanzie: un investimento nel lungo periodo

Moduli fotovoltaici

  • Garanzia prodotto: 40 anni
  • Garanzia produzione:
    • 91,75% al 25° anno
    • 88% al 40° anno
  • Assistenza: sostituzione e reinstallazione modulo difettoso
  • Smaltimento a fine vita incluso (RAEE)

Microinverter

  • Garanzia prodotto: 25 anni (Enphase)

Sistema di accumulo

  • Garanzia prodotto: 15 anni (Enphase)

Una soluzione concreta per autonomia e comfort

Questo progetto rappresenta perfettamente l’approccio IM-EL Osasio:
non proporre soluzioni standard, ma individuare la configurazione più efficace per ogni contesto.

Il carport fotovoltaico, in questo caso, ha trasformato un limite (il tetto non idoneo) in un’opportunità:

  • più energia
  • più funzionalità
  • più valore per l’abitazione

👉 Vuoi realizzare un carport fotovoltaico?

Contattaci per una consulenza: analizziamo il tuo spazio e progettiamo la soluzione più adatta alle tue esigenze.